Bán Biệt Thự Victoria Ba Son Quận 1, 225m2 đất, 1 Hầm + 4 Tầng, 330 Tỷ

Thông tin mô tả
Mã tin
: 33626806
Cập nhật
: 1 ngày trước
Loại tin
: Bán nhà biệt thự, liền kề
Dự án
: Vinhomes Golden River Ba Son
Mức giá
: 330 tỷ
Diện tích
: 225m²
Phòng ngủ
: 5 phòng ngủ
Quý khách xem nhà trực tiếp xin liên hệ:
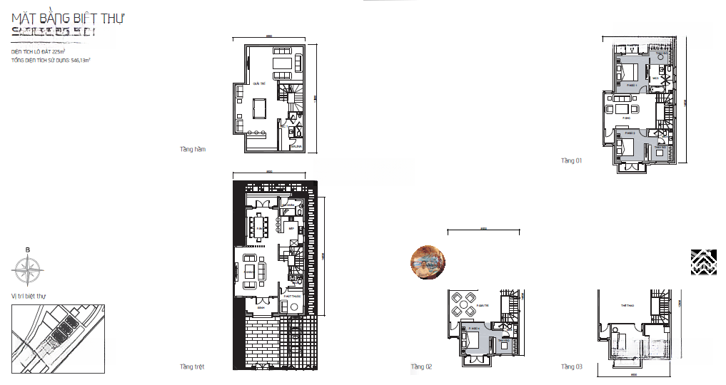
Bán Biệt thự Victoria Ba Son Quận 1 nằm một trong những dãy Biệt thự gần về phía đường Nguyễn Bỉnh Khiêm, gần sông Sài Gòn, có diện tích đất 225m2 (10x22,5m), Diện tích sử dụng 551m2.
Biệt thự song lập Victoria Vinhomes xây dựng gồm: 1 hầm, 1 trệt, 2 lầu, áp mái, hiện trạng bên trong nhà thô, hoàn thiện bên ngoài.
Giá bán: 330 Tỷ đồng
Xem thêm: http://proviewland.vn/biet-thu-ban/biet-thu-quan-1-ban/ban-biet-thu-victoria-quan-1/
Liên Hệ: Mr Hiền (Viber/Zalo/whatsapp)Đặc điểm nổi bậtDiện tích :225m2Mặt tiền :10mGiá :330 tỷSố tầng :4 tầngPhòng ngủ :5 phòng
Đặc điểm bất động sản
Mức giá: 330 tỷ
Tính lãi suất