Bán Nhà 2 Tầng đang Hoàn Thiện + Bao Hoàn Công - Vĩnh Nguyên - Phường Nha Trang

Thông tin mô tả
Mã tin
: 33586497
Cập nhật
: 2 ngày trước
Loại tin
: Bán nhà riêng
Mức giá
: 6,5 tỷ
Diện tích
: 142m²
Phòng ngủ
: 3 phòng ngủ
Quý khách xem nhà trực tiếp xin liên hệ:
Bán nhà 2 tầng Vĩnh Nguyên - Phường Nha Trang.
- Vị trí cách đường Trần Phú chỉ 120m. Cách bờ kè biển 150m.
- Tiện ích: Bên hông bệnh viện Đa Khoa Quốc Tế Vinmec, nhà hàng hải sản Thanh Sương, gần Cảng Vinpearl, và Viện Hải Dương Học.
- Nhà đang được xây dựng hoàn thiện có giấy phép xây dựng (bao sổ hoàn công).
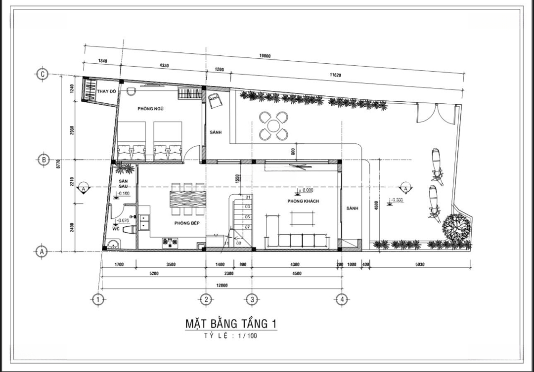
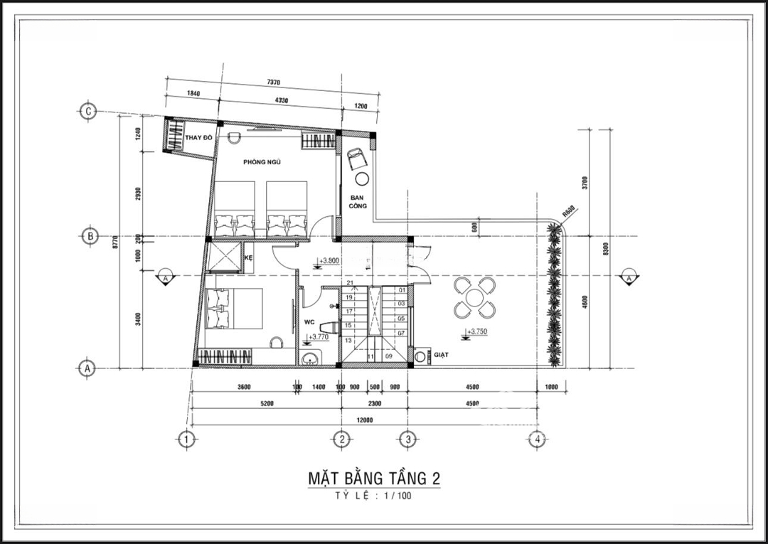
- Kết cấu 1 trệt 1 lầu có 3 phòng ngủ (có 1PN tầng trệt), 2 vệ sinh, khách, bếp, kết hợp sân vườn thoáng mát.
- Diện tích: 142m2 full thổ cư.
- Pháp lý: Sổ hồng bao hoàn công cho khách mua.
Giá: 6 tỷ 500 (thương lượng mạnh cho khách thiện chí em Nghĩa.Đặc điểm nổi bậtDiện tích :142m2Mặt tiền :7mGiá :6,5 tỷSố tầng :2 tầngPhòng ngủ :3 phòngPhòng tắm :2 phòngĐường vào :2.5m
Đặc điểm bất động sản
Mức giá: 6.5 tỷ
Tính lãi suất