Bán Shophouse 5,9 Tỷ Tại 19/5, Vĩnh Hiệp, Nha Trang, 205,06 M2 Hàng Hiếm Giá ưu đãi

Thông tin mô tả
Mã tin
: 33565180
Cập nhật
: 2 ngày trước
Loại tin
: Bán kho, nhà xưởng
Mức giá
: 5,9 tỷ
Diện tích
: 205.06m²
Quý khách xem nhà trực tiếp xin liên hệ:
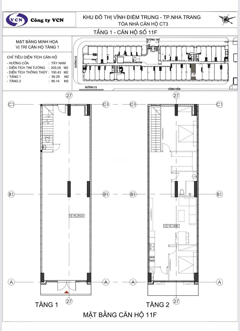
Căn thô shophouse CT3 mặt hồ 11F 190,43 chỉ 5,9 tỷ (bao 2% bảo trì), ngang 5m.
- Thiết kế hiện đại và phong thủy tốt.
- Vị trí thuận lợi, dễ dàng tiếp cận khách hàng.
- Không gian lý tưởng cho kinh doanh và sinh sống.
Khu vực xung quanh có nhiều tiện ích như:
- Trường mầm non ABC gần kề.
- Bệnh viện Đa khoa Sài Gòn Nha Trang và Bệnh viện Đa khoa Yersin Nha Trang phục vụ nhu cầu sức khỏe.
- Công viên thiếu nhi và công viên KDT Vĩnh Điềm Trung A cho không gian thư giãn.
- Siêu thị Bách Hóa Xanh và nhiều cửa hàng tiện lợi phục vụ nhu cầu sinh hoạt hàng ngày.
Liên hệ em Ngọc Anh zalo).Đặc điểm nổi bậtDiện tích :205.06m2Mặt tiền :5mGiá :5,9 tỷ
Đặc điểm bất động sản
Mức giá: 5.9 tỷ
Tính lãi suất