Shop Chân đế-khối đế Monaco Tower M2 Chung Cư Cosmopolitan Cđt Mik Cổ Loa Tại Vinhomes Global Gate

Thông tin mô tả
Mã tin
: 33570234
Cập nhật
: 2 ngày trước
Loại tin
: Bán kho, nhà xưởng
Mức giá
: 8,5 tỷ
Diện tích
: 50m²
Quý khách xem nhà trực tiếp xin liên hệ:
Mua bán Shop chân đế - Shophouse khối đế tòa Monaco Tower M2 - Chung cư Cosmopolitan - CĐT MIK Cổ Loa tại Vinhomes Global Gate Đông Anh.
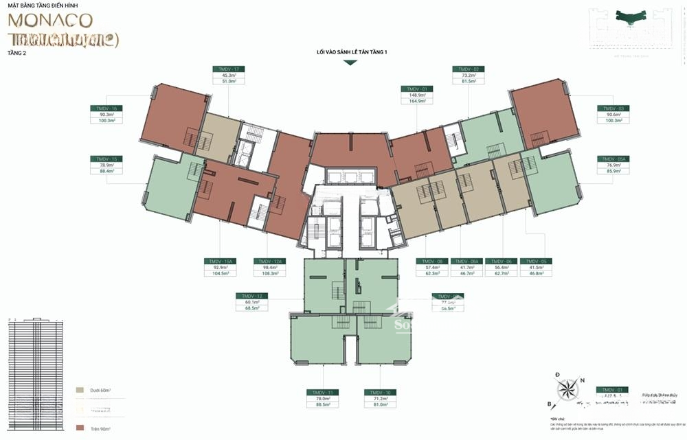
Mặt bằng tầng 1 Shop chân đế Monaco Tower (M2), Chung cư Cosmopolitan CTĐ MIK tại Vinhomes Global Gate mà bạn gửi. Đây là tầng thương mại quan trọng nhất, vì nằm sát mặt đất, kết nối trực tiếp với cư dân và khách vãng lai.
Thông tin mặt bằng tầng 1 Monaco Tower (M2).
Tổng số shop TMDV: 17 căn (TMDV - 01 đến TMDV - 17).
Diện tích chi tiết (theo bản vẽ):
Nhỏ 60 m²:
TMDV - 05 (42 m²), TMDV - 06 (44,8 m²), TMDV - 07 (41,9 m²), TMDV - 08 (45,7 m²), TMDV - 09 (46,8 m²).
Trung bình 60 90 m²:
TMDV - 02 (74,1 m²), TMDV - 08A (77,7 m²), TMDV - 10 (66,2 m²), TMDV - 11 (79,7 m²), TMDV - 12 (60,4 m²).
Lớn 90 110 m²:
TMDV - 03 (103,5 m²), TMDV - 15 (88,8 m²), TMDV - 16 (100,4 m²), TMDV - 17 (99,4 m²).
Siêu lớn 120 m²:
TMDV - 01 (66,9 m² + diện tích tim tường 75,1 m²),
TMDV - 13 (93,8 m² tim tường 104,3 m²),
TMDV - 14 (57,1 m² tim tường 62 m²).
Như vậy:
Shop nhỏ: Tập trung dãy giữa (0509) thuận tiện làm dịch vụ nhanh, cửa hàng tiện lợi.
Shop trung bình/lớn: Phân bổ góc, nhiều shop có 2 mặt tiền (03, 11, 15, 16, 17) kinh doanh nổi bật, biển hiệu dễ nhìn.
Shop siêu lớn (13) có thể làm siêu thị mini hoặc nhà hàng lớn.
Giá trị đầu tư tham khảo (2025).
Giá bán (ước tính theo m², mặt đường chính từ 180 - 250 triệu/m²):
Shop nhỏ (40 60 m²): 8 12 tỷ/căn.
Shop trung bình (60 90 m²): 14 20 tỷ/căn.
Shop lớn (90 110 m²): 20 28 tỷ/căn.
Shop siêu lớn (120 m²): 30 40 tỷ/căn.
Giá thuê thị trường (ước tính):
Shop nhỏ: 50 80 triệu/tháng.
Shop trung bình: 90 150 triệu/tháng.
Shop lớn: 150 220 triệu/tháng.
Shop siêu lớn: 250 350 triệu/tháng.
Tiềm năng kinh doanh theo diện tích.
Nhỏ (4060 m²): Tiệm café take - away, cửa hàng thuốc, siêu thị mini, dịch vụ cư dân (giặt là, salon tóc).
Trung bình (6090 m²): Showroom thời trang, giáo dục trẻ em, cửa hàng F&B dạng chuỗi (Highlands, Gongcha).
Lớn (90110 m²): Ngân hàng, gym, nhà hàng, phòng khám.
Siêu lớn (120 m²): Siêu thị, trung tâm giáo dục, flagship store, nhà hàng cao cấp.
Thông tin bán hàng và cho thuê zalo, Viber và Telegram: 091987596.
Thông tin: https://vinhomescoloadonganh.com.vn/tin-tuc
Web: https://vinhomescoloadonganh.com.vn/Đặc điểm nổi bậtDiện tích :50m2Mặt tiền :5mGiá :8,5 tỷ
Đặc điểm bất động sản
Mức giá: 8.5 tỷ
Tính lãi suất