Nắm Chính Chủ 4 Lô Ngân Câu điện Ngọc Giá Tốt Chỉ 2.65tỷ

Thông tin mô tả
Mã tin
: 34411459
Cập nhật
: 3 ngày trước
Loại tin
: Bán đất nền dự án
Mức giá
: 2,75 tỷ
Diện tích
: 75m²
Quý khách xem nhà trực tiếp xin liên hệ:
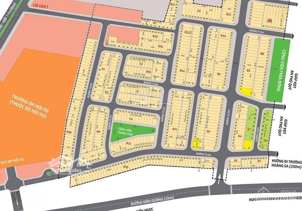
NẮM CHÍNH CHỦ 4 LÔ NGÂN CÂU ĐIỆN NGỌC GIÁ TỐT :
+ B2 đường Lưu Quang Vũ 2.6x tỷ /75m2
+ B3 đường Đỗ Nhuận 2.85 tỷ/85m2
+ B11 đường Đỗ Nhuận 2.85 tỷ/85m2
+ Góc B2 đường Nguyễn Đình Thi 3.55 tỷ /112m2
- Đường quy hoạch , sổ sẵn công chứng
LIÊN HỆ XEM ĐẤT Đặc điểm nổi bậtDiện tích :75m2Giá :2,75 tỷ
Đặc điểm bất động sản
Mức giá: 2.75 tỷ
Tính lãi suất